Bạn đang ấp ủ giấc mơ về một tổ ấm nhỏ xinh, tiện nghi và ấm cúng trên mảnh đất ngang 4m dài 15m? Bạn lo lắng về chi phí xây dựng, không biết bắt đầu từ đâu để có một ngôi nhà vừa đẹp, vừa bền lại phù hợp với túi tiền? Đừng lo lắng! Bài viết này của Xây dựng Nikcon sẽ là “kim chỉ nam” giúp bạn hiện thực hóa ước mơ đó. Chúng tôi sẽ chia sẻ tất tần tật kinh nghiệm thực tế, từ dự toán chi phí chi tiết đến những mẫu nhà cấp 4 đẹp ngất ngây, giúp bạn có cái nhìn tổng quan và đưa ra quyết định sáng suốt nhất.
Giải mã chi phí xây nhà cấp 4 ngang 4m dài 15m: Rõ ràng, minh bạch, không phát sinh!
Xây dựng một ngôi nhà là một quyết định quan trọng, và việc nắm rõ chi phí là yếu tố then chốt. Dưới đây là bảng dự toán chi phí chi tiết cho ngôi nhà cấp 4 ngang 4m dài 15m, giúp bạn có cái nhìn tổng quan và chuẩn bị tài chính tốt nhất:
Bảng dự toán chi phí xây dựng nhà cấp 4 (4m x 15m)
| Hạng mục | Đơn giá (VNĐ/m2) | Diện tích (m2) | Thành tiền (VNĐ) | Ghi chú |
|---|---|---|---|---|
| Phần thô | 3.500.000 – 4.000.000 | 60 | 210.000.000 – 240.000.000 | Bao gồm: móng, tường, cột, dầm, sàn, mái (chưa bao gồm vật liệu hoàn thiện). |
| Nhân công hoàn thiện | 1.500.000 – 2.000.000 | 60 | 90.000.000 – 120.000.000 | Bao gồm: ốp lát, sơn bả, lắp đặt thiết bị vệ sinh, điện nước. |
| Vật liệu hoàn thiện | 2.000.000 – 3.000.000 | 60 | 120.000.000 – 180.000.000 | Bao gồm: gạch ốp lát, sơn, thiết bị vệ sinh, thiết bị điện, cửa, v.v. (Tùy thuộc vào lựa chọn của gia chủ). |
| Chi phí khác | – | – | 20.000.000 – 30.000.000 | Bao gồm: chi phí thiết kế, giấy phép xây dựng, phát sinh (khoảng 5-10% tổng chi phí). |
| Tổng chi phí | – | – | 440.000.000 – 570.000.000 | Đây là mức chi phí tham khảo. Chi phí thực tế có thể thay đổi tùy thuộc vào nhiều yếu tố như: vị trí địa lý, thời điểm xây dựng, vật liệu sử dụng, nhà thầu thi công, v.v. |
Lưu ý quan trọng:
- Bao gồm: Chi phí trên bao gồm tất cả các hạng mục từ phần thô đến hoàn thiện cơ bản, đủ để bạn có một ngôi nhà có thể ở được.
- Không bao gồm: Chi phí này chưa bao gồm nội thất rời (bàn ghế, giường tủ, v.v.) và các thiết bị điện tử (tivi, tủ lạnh, máy giặt, v.v.).
- Phát sinh: Luôn dự trù một khoản phát sinh (khoảng 5-10% tổng chi phí) để đề phòng những tình huống bất ngờ.
- Vật liệu: Bảng giá trên chỉ mang tính chất tham khảo. Việc lựa chọn vật liệu xây dựng sẽ ảnh hưởng trực tiếp đến tổng chi phí.
Bảng dự toán chi phí xây nhà cấp 4 ngang 4m dài 15m chi tiết và minh bạch
5 Bí quyết vàng giúp bạn sở hữu nhà cấp 4 4×15 đẹp, tiết kiệm, bền vững
Dựa trên kinh nghiệm 15 năm thực chiến trong ngành xây dựng, Xây dựng Nikcon xin chia sẻ 5 bí quyết vàng giúp bạn có một ngôi nhà cấp 4 4×15 vừa đẹp, vừa tiết kiệm, lại bền vững theo thời gian:
- Lựa chọn phong cách thiết kế phù hợp: Với diện tích khiêm tốn, phong cách tối giản, hiện đại hoặc Scandinavian là những lựa chọn thông minh. Tránh các chi tiết rườm rà, cầu kỳ, tập trung vào công năng sử dụng và ánh sáng tự nhiên.
- Tối ưu hóa không gian: Sử dụng nội thất thông minh, đa năng, tận dụng tối đa không gian lưu trữ. Thiết kế gác lửng (nếu có thể) để tăng thêm diện tích sử dụng.
- Chọn vật liệu xây dựng thông minh: Ưu tiên các vật liệu nhẹ, bền, có khả năng cách nhiệt tốt như: gạch không nung, tấm panel, mái tôn lạnh. Điều này không chỉ giúp tiết kiệm chi phí mà còn giảm thiểu tác động đến môi trường.
- Tìm nhà thầu uy tín: Đây là yếu tố quan trọng nhất quyết định chất lượng công trình. Hãy tìm hiểu kỹ thông tin, xem xét các công trình đã thực hiện, và yêu cầu báo giá chi tiết, rõ ràng.
- Giám sát chặt chẽ quá trình thi công: Dù bạn có tin tưởng nhà thầu đến đâu, việc giám sát chặt chẽ quá trình thi công là vô cùng cần thiết. Điều này giúp bạn phát hiện sớm các sai sót và đảm bảo công trình được thực hiện đúng theo thiết kế.
5 bí quyết vàng xây nhà cấp 4 ngang 4m dài 15m tiết kiệm chi phí, bền vững
Khám phá bộ sưu tập mẫu nhà cấp 4 ngang 4m dài 15m đẹp “mê ly”
Dưới đây là một số Mẫu Nhà Cấp 4 Ngang 4m Dài 15m được Xây dựng Nikcon tuyển chọn, phù hợp với nhiều phong cách và ngân sách khác nhau.
Mẫu nhà cấp 4 mái Thái 4×15 hiện đại
- Hình ảnh:
Mẫu nhà cấp 4 mái Thái ngang 4m dài 15m phong cách hiện đại với tông màu trắng chủ đạo - Ưu điểm: Thiết kế hiện đại, sang trọng, mái Thái giúp thoát nước tốt, chống nóng hiệu quả.
- Nhược điểm: Chi phí xây dựng cao hơn so với các loại mái khác.
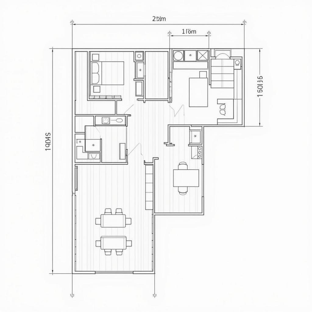
- Bản vẽ mặt bằng: (Sử dụng hình ảnh bản vẽ mặt bằng chi tiết)
Bản vẽ mặt bằng chi tiết của mẫu nhà cấp 4 mái Thái ngang 4m dài 15m - Thông số:
- Diện tích: 60m2
- Kích thước: 4m x 15m
- Số phòng: 2 phòng ngủ, 1 phòng khách, 1 bếp, 1 WC
- Phong cách: Hiện đại
- Dự toán chi phí: 480.000.000 – 600.000.000 VNĐ
Mẫu nhà cấp 4 gác lửng 4×15 tối ưu không gian
- Hình ảnh:
Mẫu nhà cấp 4 gác lửng ngang 4m dài 15m thiết kế tối ưu không gian - Ưu điểm: Tăng thêm diện tích sử dụng, phù hợp với gia đình có nhiều thành viên.
- Nhược điểm: Gác lửng có thể gây cảm giác bí bách nếu không được thiết kế thông thoáng.
- Bản vẽ mặt bằng: (Sử dụng hình ảnh bản vẽ mặt bằng chi tiết)
Bản vẽ mặt bằng chi tiết mẫu nhà cấp 4 gác lửng ngang 4m dài 15m - Thông số:
- Diện tích: 60m2 (tầng trệt) + 30m2 (gác lửng)
- Kích thước: 4m x 15m
- Số phòng: 3 phòng ngủ, 1 phòng khách, 1 bếp, 2 WC
- Phong cách: Tối giản
- Dự toán chi phí: 520.000.000 – 650.000.000 VNĐ
Mẫu nhà cấp 4 mái bằng 4×15 tiết kiệm chi phí
- Hình ảnh:
Mẫu nhà cấp 4 mái bằng ngang 4m dài 15m thiết kế tiết kiệm chi phí - Ưu điểm: Chi phí xây dựng thấp nhất, dễ dàng thi công và bảo trì.
- Nhược điểm: Khả năng chống nóng kém hơn so với mái Thái.
- Bản vẽ mặt bằng: (Sử dụng hình ảnh bản vẽ mặt bằng chi tiết)
Bản vẽ mặt bằng chi tiết mẫu nhà cấp 4 mái bằng ngang 4m dài 15m - Thông số:
- Diện tích: 60m2
- Kích thước: 4m x 15m
- Số phòng: 2 phòng ngủ, 1 phòng khách, 1 bếp, 1 WC
- Phong cách: Đơn giản
- Dự toán chi phí: 440.000.000 – 550.000.000 VNĐ
Bộ sưu tập các mẫu nhà cấp 4 ngang 4m dài 15m đẹp và đa dạng phong cách thiết kế
Giải đáp thắc mắc thường gặp về xây nhà cấp 4 4×15
- Xây nhà cấp 4 4×15 có cần xin giấy phép xây dựng không?
- Có. Theo quy định của pháp luật, tất cả các công trình xây dựng, bao gồm cả nhà cấp 4, đều phải có giấy phép xây dựng.
- Thời gian xây dựng nhà cấp 4 4×15 mất bao lâu?
- Thời gian xây dựng trung bình là từ 2-3 tháng, tùy thuộc vào quy mô và độ phức tạp của công trình.
- Nên chọn nhà thầu xây dựng như thế nào để đảm bảo chất lượng?
- Nên chọn nhà thầu có uy tín, kinh nghiệm, có giấy phép hoạt động, và có khả năng cung cấp báo giá chi tiết, rõ ràng.
- Có nên tự thiết kế nhà cấp 4 hay thuê kiến trúc sư?
- Nếu bạn không có kinh nghiệm về thiết kế, nên thuê kiến trúc sư để đảm bảo công năng sử dụng và tính thẩm mỹ của ngôi nhà.
- Làm thế nào để tiết kiệm chi phí xây dựng nhà cấp 4?
- Lựa chọn phong cách thiết kế đơn giản, sử dụng vật liệu xây dựng thông minh, tìm nhà thầu uy tín, và giám sát chặt chẽ quá trình thi công.
Liên hệ ngay để nhận ưu đãi độc quyền!
Bạn còn bất kỳ thắc mắc nào về việc xây nhà cấp 4 ngang 4m dài 15m? Đừng ngần ngại liên hệ với Xây Dựng Nikcon để được tư vấn miễn phí và nhận ngay file Excel dự toán chi phí chi tiết!
- 150+ Mẫu Trần Thạch Cao Phòng Khách Nhà Cấp 4 Đẹp Hiện Đại Nhất 2026
- 101+ Mẫu Biệt Thự Nhà Vườn 1 Tầng Hiện Đại Đẹp Mê Ly 2026
- 101+ Mẫu Nhà 6x18m 2 Tầng Đẹp Ngỡ Ngàng, Tiết Kiệm Chi Phí 2026
- 150+ Mẫu Nhà Rộng 5m Dài 20m 2 Tầng Đẹp Mê Ly, Tiết Kiệm Chi Phí 2026
- 101+ Mẫu Nhà 2 Tầng Đẹp Giá 500 Triệu HOT Nhất 2026

Mẫu nhà cấp 4 mái Thái ngang 4m dài 15m phong cách hiện đại với tông màu trắng chủ đạo
Bản vẽ mặt bằng chi tiết của mẫu nhà cấp 4 mái Thái ngang 4m dài 15m
Mẫu nhà cấp 4 gác lửng ngang 4m dài 15m thiết kế tối ưu không gian
Bản vẽ mặt bằng chi tiết mẫu nhà cấp 4 gác lửng ngang 4m dài 15m
Mẫu nhà cấp 4 mái bằng ngang 4m dài 15m thiết kế tiết kiệm chi phí
Bản vẽ mặt bằng chi tiết mẫu nhà cấp 4 mái bằng ngang 4m dài 15m