Chắc hẳn bạn đang ấp ủ giấc mơ về một ngôi nhà hoàn hảo, nơi chiếc xe hơi yêu quý được bảo vệ an toàn và tôn lên vẻ đẹp kiến trúc tổng thể? Bạn lo lắng về chi phí phát sinh, thiết kế không phù hợp với diện tích đất, hoặc đơn giản là chưa tìm được ý tưởng nào ưng ý? Đừng lo lắng! Bài viết này của Xây dựng Nikcon sẽ là chìa khóa giải quyết mọi vấn đề, mang đến cho bạn những Mẫu Nhà để Xe ô Tô đẹp, tiện nghi và phù hợp nhất với nhu cầu của bạn.
Giải mã Chi phí Xây Nhà Để Xe Ô Tô: Minh bạch & Chi tiết
Việc dự toán chi phí xây nhà để xe ô tô là bước quan trọng để bạn có thể chủ động tài chính và tránh phát sinh ngoài ý muốn. Dưới đây là bảng dự toán chi phí tham khảo, áp dụng cho các mẫu nhà để xe ô tô phổ biến hiện nay:
| Hạng mục | Chi phí (VNĐ/m2) | Ghi chú |
|---|---|---|
| Phần thô | 3.500.000 – 4.500.000 | Bao gồm: Móng, cột, dầm, sàn, mái, tường xây. |
| Phần hoàn thiện | 2.500.000 – 5.000.000 | Bao gồm: Ốp lát, sơn bả, cửa, thiết bị vệ sinh, điện nước cơ bản. |
| Nhân công | 1.200.000 – 1.800.000 | Chi phí nhân công xây dựng và hoàn thiện. |
| Chi phí khác | 5 – 10% tổng chi phí | Bao gồm: Chi phí thiết kế, xin phép xây dựng, phát sinh. |
Lưu ý:
- Bảng dự toán trên chỉ mang tính chất tham khảo, chi phí thực tế có thể thay đổi tùy thuộc vào vật liệu xây dựng, địa điểm thi công, thời điểm xây dựng và đơn vị thi công.
- Chi phí trên BAO GỒM: Vật tư xây dựng cơ bản (xi măng, cát, đá, sắt thép, gạch), nhân công, máy móc thiết bị thi công.
- Chi phí trên KHÔNG BAO GỒM: Chi phí thiết kế, xin phép xây dựng, vật liệu hoàn thiện cao cấp, nội thất, chi phí phát sinh do thay đổi thiết kế.
5 Bí Quyết Vàng để Thiết Kế Nhà Để Xe Ô Tô Hoàn Hảo
Từ kinh nghiệm thực tế trong lĩnh vực xây dựng, Xây dựng Nikcon xin chia sẻ 5 bí quyết giúp bạn sở hữu một nhà để xe ô tô hoàn hảo:
- Xác định kích thước phù hợp: Kích thước nhà để xe cần phù hợp với kích thước xe và có đủ không gian để di chuyển, bảo dưỡng xe. Nên tính toán thêm không gian cho các vật dụng khác như tủ đựng đồ, dụng cụ sửa xe.
- Chọn vị trí hợp lý: Vị trí nhà để xe nên thuận tiện cho việc ra vào, không gây cản trở giao thông và hài hòa với kiến trúc tổng thể của ngôi nhà.
- Đảm bảo an toàn: Nhà để xe cần được xây dựng chắc chắn, sử dụng vật liệu chống cháy, có hệ thống thông gió tốt và hệ thống điện an toàn.
- Chú trọng tính thẩm mỹ: Thiết kế nhà để xe cần hài hòa với kiến trúc tổng thể của ngôi nhà, sử dụng màu sắc và vật liệu phù hợp.
- Lựa chọn đơn vị thi công uy tín: Lựa chọn đơn vị thi công có kinh nghiệm, uy tín để đảm bảo chất lượng công trình và tránh phát sinh ngoài ý muốn. Một sai lầm chúng tôi thường thấy là gia chủ ham rẻ mà chọn đơn vị thi công không đủ năng lực, dẫn đến nhiều hệ lụy về sau.
Bộ Sưu Tập Mẫu Nhà Để Xe Ô Tô Đẹp & Tiện Nghi
Dưới đây là một số mẫu nhà để xe ô tô đẹp và tiện nghi, được Xây dựng Nikcon tuyển chọn:
Mẫu Nhà Cấp 4 Có Gara Ô Tô Hiện Đại
Mẫu nhà cấp 4 có gara ô tô hiện đại là lựa chọn phổ biến cho những gia đình trẻ, yêu thích sự đơn giản và tiện nghi. Thiết kế này thường sử dụng các vật liệu hiện đại như kính, thép, gỗ công nghiệp, tạo nên vẻ đẹp trẻ trung và năng động.
Mẫu nhà cấp 4 có gara ô tô thiết kế hiện đại với mặt tiền sử dụng kính và gỗ công nghiệp, tạo không gian mở và thông thoáng
Phân tích ưu/nhược điểm, điểm đặc biệt
- Ưu điểm: Thiết kế hiện đại, chi phí xây dựng hợp lý, phù hợp với diện tích đất vừa và nhỏ.
- Nhược điểm: Không gian sinh hoạt hạn chế so với các loại nhà khác.
- Điểm đặc biệt: Gara ô tô được thiết kế liền kề với phòng khách, tạo sự tiện lợi và kết nối giữa các không gian.
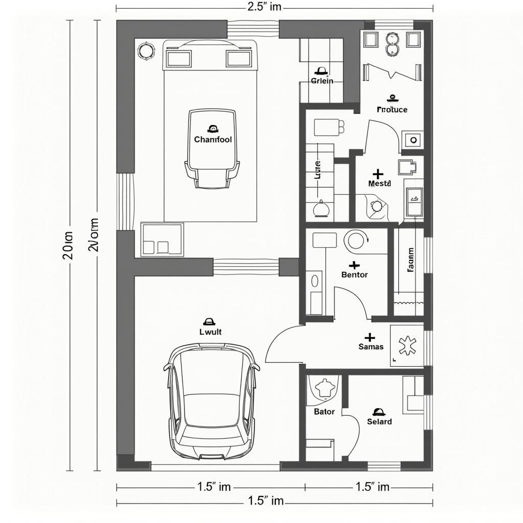
Bản vẽ mặt bằng công năng chi tiết
Bản vẽ mặt bằng chi tiết của nhà cấp 4 có gara ô tô, thể hiện bố trí phòng khách, bếp, phòng ngủ và gara ô tô
Bảng thông số
- Diện tích: 80-100m2
- Kích thước: 8x10m, 10x10m
- Số phòng: 2-3 phòng ngủ, 1 phòng khách, 1 bếp, 1 phòng vệ sinh, 1 gara ô tô
- Phong cách: Hiện đại
Dự toán chi phí tham khảo
- Phần thô: 300 – 450 triệu đồng
- Hoàn thiện: 200 – 350 triệu đồng
- Tổng: 500 – 800 triệu đồng
Mẫu Nhà 2 Tầng Có Gara Ô Tô Mái Nhật
Mẫu nhà 2 tầng có gara ô tô mái Nhật là sự kết hợp hài hòa giữa kiến trúc truyền thống và hiện đại. Mái Nhật có độ dốc vừa phải, giúp thoát nước tốt và tạo vẻ đẹp thanh thoát cho ngôi nhà.
Mẫu nhà 2 tầng có gara ô tô thiết kế mái Nhật với kiến trúc hiện đại, sử dụng màu sắc trung tính và vật liệu tự nhiên
Phân tích ưu/nhược điểm, điểm đặc biệt
- Ưu điểm: Không gian sinh hoạt rộng rãi, thiết kế đẹp mắt, phù hợp với nhiều phong cách kiến trúc.
- Nhược điểm: Chi phí xây dựng cao hơn so với nhà cấp 4.
- Điểm đặc biệt: Mái Nhật tạo điểm nhấn kiến trúc độc đáo, mang đến vẻ đẹp thanh lịch và sang trọng.
Bản vẽ mặt bằng công năng chi tiết
Bản vẽ mặt bằng chi tiết nhà 2 tầng có gara ô tô mái Nhật, thể hiện bố trí các phòng chức năng trên cả hai tầng
Bảng thông số
- Diện tích: 100-150m2
- Kích thước: 8x12m, 10x15m
- Số phòng: 3-4 phòng ngủ, 1 phòng khách, 1 bếp, 2-3 phòng vệ sinh, 1 gara ô tô
- Phong cách: Hiện đại, tân cổ điển, tối giản
Dự toán chi phí tham khảo
- Phần thô: 500 – 750 triệu đồng
- Hoàn thiện: 400 – 700 triệu đồng
- Tổng: 900 – 1450 triệu đồng
Mẫu Biệt Thự Vườn Có Gara Ô Tô Sang Trọng
Mẫu biệt thự vườn có gara ô tô sang trọng là lựa chọn hoàn hảo cho những gia đình có điều kiện kinh tế, yêu thích không gian sống rộng rãi và tiện nghi. Thiết kế này thường kết hợp hài hòa giữa kiến trúc hiện đại và cảnh quan thiên nhiên, tạo nên một không gian sống đẳng cấp và thư thái.
Mẫu biệt thự vườn có gara ô tô sang trọng với kiến trúc bề thế, sử dụng vật liệu cao cấp và cảnh quan xanh mát
Phân tích ưu/nhược điểm, điểm đặc biệt
- Ưu điểm: Không gian sống rộng rãi, tiện nghi, thiết kế sang trọng, đẳng cấp.
- Nhược điểm: Chi phí xây dựng rất cao, đòi hỏi diện tích đất lớn.
- Điểm đặc biệt: Gara ô tô được thiết kế tích hợp với cảnh quan sân vườn, tạo sự hài hòa và thẩm mỹ cao.
Bản vẽ mặt bằng công năng chi tiết
Bản vẽ mặt bằng chi tiết biệt thự vườn có gara ô tô, thể hiện bố trí các phòng chức năng, khu vực sân vườn và gara
Bảng thông số
- Diện tích: 200-500m2
- Kích thước: Tùy theo diện tích đất
- Số phòng: 4-6 phòng ngủ, 1-2 phòng khách, 1 bếp, 3-5 phòng vệ sinh, 1 gara ô tô
- Phong cách: Cổ điển, tân cổ điển, hiện đại
Dự toán chi phí tham khảo
- Phần thô: 1.000 – 2.500 triệu đồng
- Hoàn thiện: 800 – 2.000 triệu đồng
- Tổng: 1.800 – 4.500 triệu đồng
Mẫu Nhà Ống Có Gara Ô Tô Tiết Kiệm Diện Tích
Với đặc điểm hẹp về chiều ngang và sâu về chiều dài, nhà ống thường gặp khó khăn trong việc bố trí gara ô tô. Tuy nhiên, với thiết kế thông minh và sáng tạo, bạn hoàn toàn có thể sở hữu một gara ô tô tiện nghi và tiết kiệm diện tích cho ngôi nhà ống của mình.
Mẫu nhà ống có gara ô tô thiết kế tiết kiệm diện tích, tận dụng tối đa không gian chiều dọc của ngôi nhà
Phân tích ưu/nhược điểm, điểm đặc biệt
- Ưu điểm: Giải pháp hiệu quả cho nhà có diện tích hẹp, tận dụng tối đa không gian.
- Nhược điểm: Hạn chế về chiều rộng gara, cần thiết kế thông minh để đảm bảo di chuyển thuận tiện.
- Điểm đặc biệt: Thiết kế gara thường kết hợp với không gian phòng khách hoặc bếp, tạo sự linh hoạt và đa năng.
Bản vẽ mặt bằng công năng chi tiết
Bản vẽ mặt bằng chi tiết nhà ống có gara ô tô, thể hiện cách bố trí gara và các phòng chức năng khác một cách hợp lý và tiết kiệm diện tích
Bảng thông số
- Diện tích: 50-80m2
- Kích thước: 4-5m x 12-16m
- Số phòng: 2-3 phòng ngủ, 1 phòng khách, 1 bếp, 1-2 phòng vệ sinh, 1 gara ô tô
- Phong cách: Hiện đại, tối giản
Dự toán chi phí tham khảo
- Phần thô: 250 – 400 triệu đồng
- Hoàn thiện: 200 – 350 triệu đồng
- Tổng: 450 – 750 triệu đồng
Mẫu Nhà Vườn Cấp 4 Có Gara Ô Tô Hòa Mình Với Thiên Nhiên
Mẫu nhà vườn cấp 4 có gara ô tô là sự lựa chọn lý tưởng cho những ai yêu thích cuộc sống gần gũi với thiên nhiên. Thiết kế này thường chú trọng đến việc sử dụng vật liệu tự nhiên, tạo không gian mở và kết nối với sân vườn, mang đến cảm giác thư thái và bình yên.
Mẫu nhà vườn cấp 4 có gara ô tô thiết kế hòa mình với thiên nhiên, sử dụng vật liệu tự nhiên và không gian mở
Phân tích ưu/nhược điểm, điểm đặc biệt
- Ưu điểm: Không gian sống trong lành, gần gũi với thiên nhiên, thiết kế độc đáo và thư giãn.
- Nhược điểm: Cần diện tích đất rộng, chi phí bảo trì sân vườn có thể cao.
- Điểm đặc biệt: Gara ô tô được thiết kế như một phần của cảnh quan sân vườn, tạo sự hài hòa và thẩm mỹ cao.
Bản vẽ mặt bằng công năng chi tiết
Bản vẽ mặt bằng chi tiết nhà vườn cấp 4 có gara ô tô, thể hiện sự kết nối giữa không gian sống và thiên nhiên
Bảng thông số
- Diện tích: 100-150m2
- Kích thước: Tùy theo diện tích đất
- Số phòng: 2-3 phòng ngủ, 1 phòng khách, 1 bếp, 1-2 phòng vệ sinh, 1 gara ô tô
- Phong cách: Đồng quê, sinh thái
Dự toán chi phí tham khảo
- Phần thô: 400 – 600 triệu đồng
- Hoàn thiện: 300 – 500 triệu đồng
- Tổng: 700 – 1100 triệu đồng
Câu Hỏi Thường Gặp
- Chi phí xây nhà để xe ô tô có phát sinh nhiều không? Chi phí có thể phát sinh nếu bạn thay đổi thiết kế, chọn vật liệu hoàn thiện cao cấp, hoặc gặp các vấn đề trong quá trình thi công. Để hạn chế phát sinh, bạn nên lập kế hoạch chi tiết, chọn đơn vị thi công uy tín và giám sát chặt chẽ quá trình thi công.
- Có cần xin phép xây dựng khi xây nhà để xe ô tô không? Có, bạn cần xin phép xây dựng theo quy định của pháp luật. Thủ tục xin phép xây dựng có thể khác nhau tùy thuộc vào địa phương.
- Nên chọn vật liệu gì cho nhà để xe ô tô? Bạn nên chọn vật liệu có độ bền cao, chống cháy, chống thấm nước và dễ vệ sinh. Một số vật liệu phổ biến là gạch, bê tông, thép, gỗ công nghiệp.
- Có nên thuê kiến trúc sư thiết kế nhà để xe ô tô không? Nếu bạn muốn có một thiết kế độc đáo, phù hợp với nhu cầu và sở thích của mình, thì nên thuê kiến trúc sư. Kiến trúc sư sẽ giúp bạn tối ưu hóa không gian, lựa chọn vật liệu phù hợp và đảm bảo tính thẩm mỹ cho ngôi nhà.
- Làm thế nào để đảm bảo an toàn cho nhà để xe ô tô? Bạn nên lắp đặt hệ thống báo cháy, hệ thống thông gió tốt và hệ thống điện an toàn. Ngoài ra, bạn nên thường xuyên kiểm tra và bảo dưỡng xe để tránh các sự cố không mong muốn.
Liên Hệ Ngay
Bạn muốn nhận bản vẽ chi tiết của các mẫu nhà trên? Bạn cần tư vấn cụ thể hơn về chi phí và quy trình xây dựng? Hãy liên hệ ngay với Xây Dựng Nikcon để được hỗ trợ miễn phí! Tải ngay bộ bản vẽ mặt bằng miễn phí qua Zalo.
- 155+ Mẫu Nhà Mặt Tiền Đẹp Hiện Đại & Xu Hướng Nhất 2025
- 150+ Mẫu Nhà Rộng 5m Dài 20m 2 Tầng Đẹp Mê Ly, Tiết Kiệm Chi Phí 2025
- Dịch vụ Sửa nhà Trọn gói tại Quận Đống Đa Uy tín – Xây dựng Nikcon
- 155 Mẫu Nhà 2 Tầng Mái Ngói Đơn Giản Đẹp Ngỡ Ngàng 2025
- 101+ Mẫu Nhà Vườn Mái Thái Đẹp Ngất Ngây, Tiết Kiệm Chi Phí Nhất 2025
